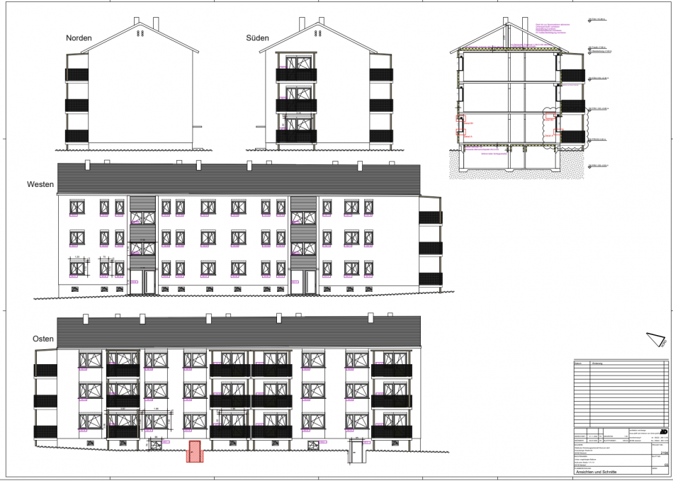
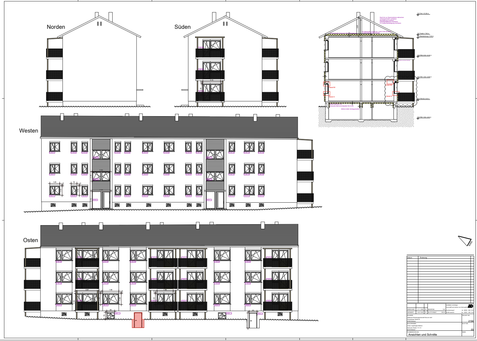
Nußlocher Straße

Renovierung
  • Planung:
    LPH 1-8
  • Bauort:
    Nußlocher Straße 117-119, Walldorf
  • Bauzeit:
    ab Mai 2023

In der Nußlocher Straße 117-119 in Walldorf wird ein markantes Renovierungsprojekt in Angriff genommen. Das dortige Gebäude erlebt nun eine umfassende Revitalisierung. Mit Sorgfalt und Detailtreue wird ein harmonischer Übergang zwischen traditioneller und moderner Baukunst geschaffen. Durch gezielte Maßnahmen und innovative Konzepte wird dieses Projekt nicht nur das Erscheinungsbild der Nußlocher Straße aufwerten, sondern auch einen bleibenden Eindruck in der Baukultur Walldorfs hinterlassen. Beginnend im Mai 2023 symbolisiert dieses Vorhaben den fortwährenden Wandel und die Weiterentwicklung im Bereich der Sanierungs- und Renovierungsarbeiten.

Fragen?

Kontaktieren Sie uns

Sie habe noch weitere Fragen? Senden Sie uns gerne eine E-Mail oder rufen Sie uns an:

info@audgmbh.de     |    06222 3891050