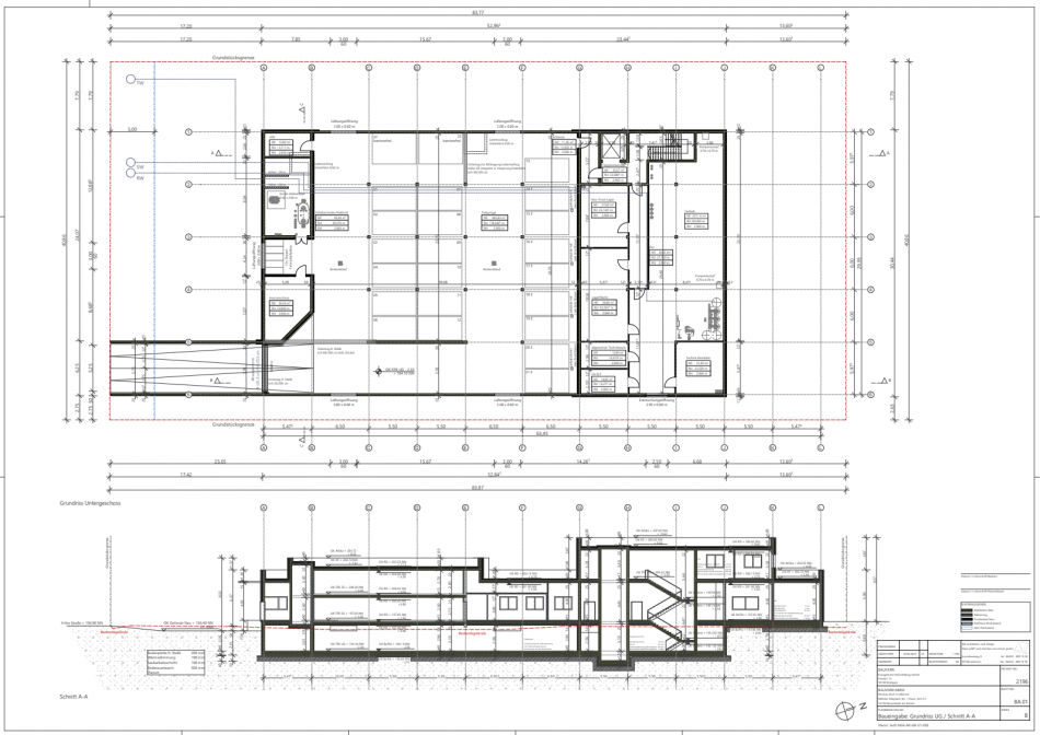
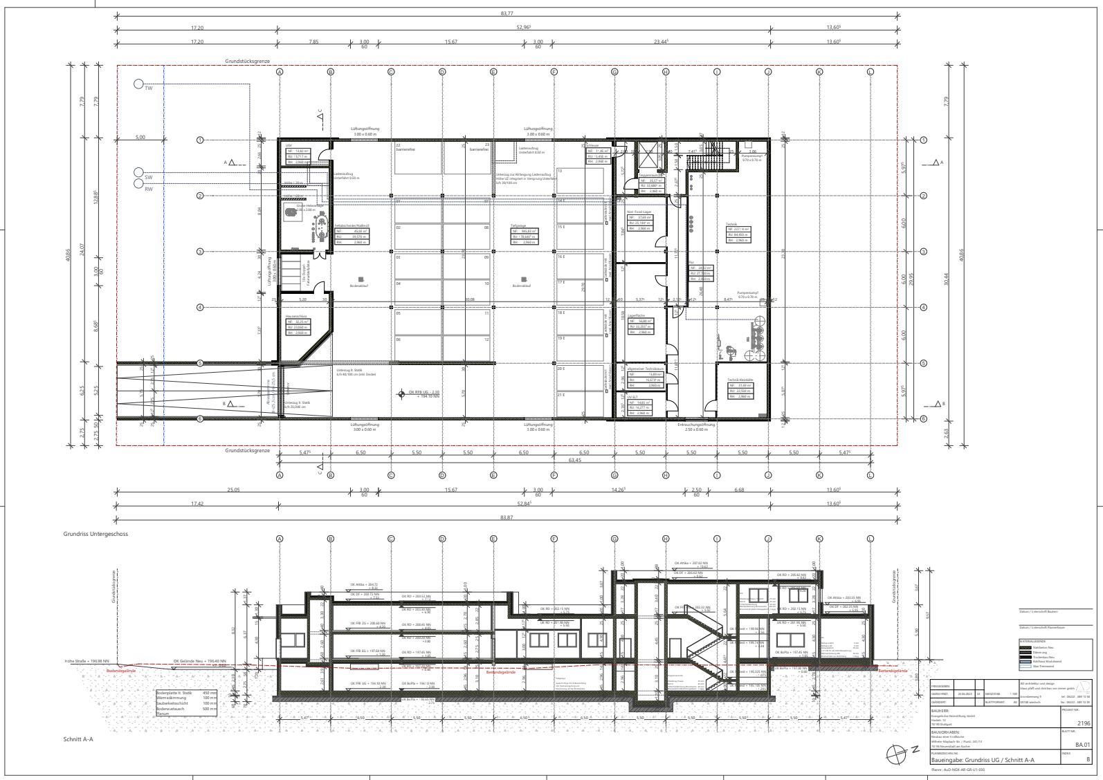
Großküche Neuenstadt

Neubau
  • Planung:
    LPH 1-9
  • Auftraggeber:
    Heimstiftung
  • Bauort:
    Wilhelm-Maybach-Str. | Neuenstadt
  • Bruttogrundfläche:
    5.130 QM
  • Bauzeit:
    vrsl. Ab Anfang Februar 2024

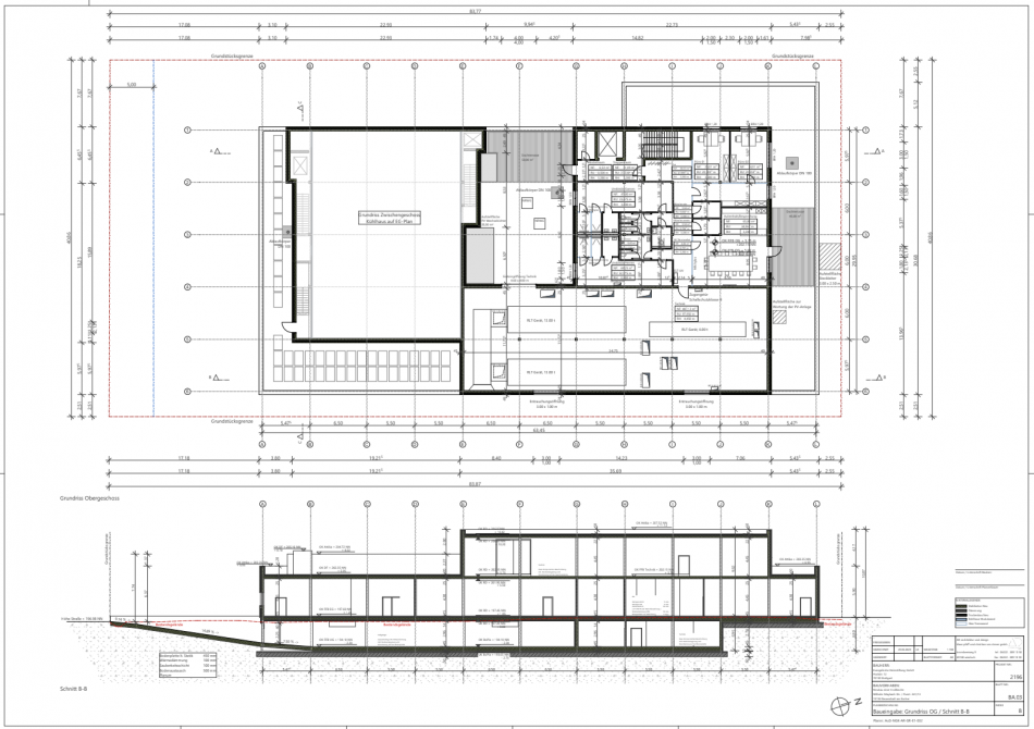
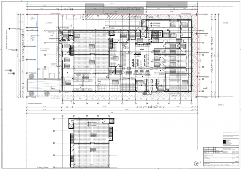
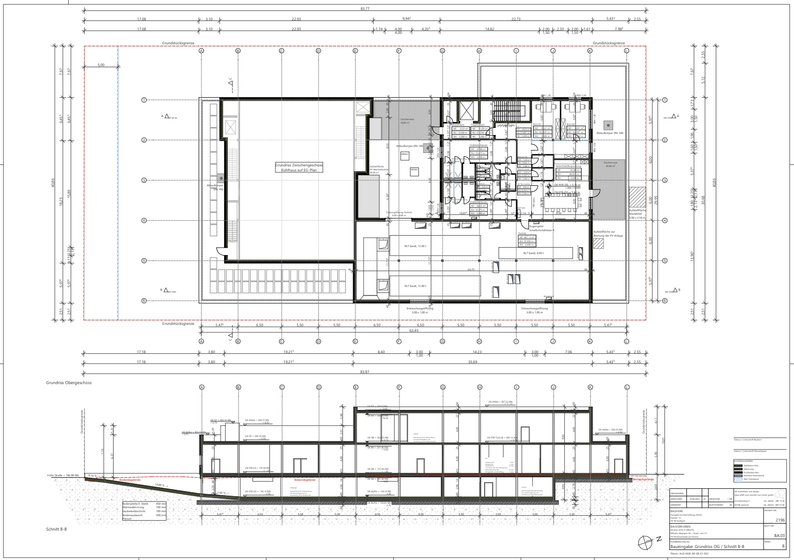
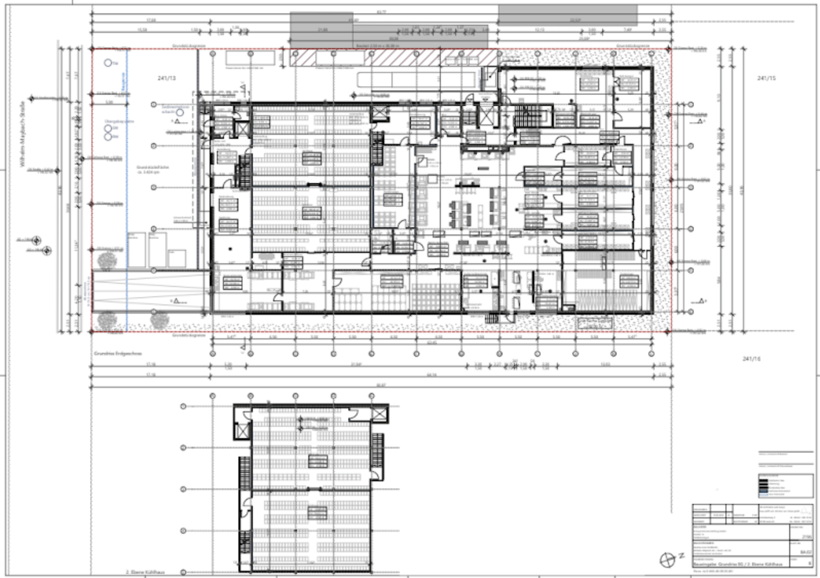
Diese modern konzipierte Großküche in Neuenstadt steht für Effizienz und technologische Fortschrittlichkeit. Auf einer Bruttogrundfläche von 5.130 QM wird nicht nur eine hochmoderne Kochinfrastruktur geschaffen, sondern auch Räumlichkeiten für Lagerung und Administration. Das Design legt Wert auf optimierte Arbeitsabläufe und Sicherheitsstandards. Die Großküche dient der Versorgung lokaler Einrichtungen und bietet zudem Kapazitäten für externe Veranstaltungen und Partnerinstitutionen. Durch die Kombination von modernster Technologie und funktionalem Design wird diese Großküche den hohen Anforderungen der Heimstiftung gerecht und setzt neue Standards in der Großküchenarchitektur.

Fragen?

Kontaktieren Sie uns

Sie habe noch weitere Fragen? Senden Sie uns gerne eine E-Mail oder rufen Sie uns an:

info@audgmbh.de     |    06222 3891050