Fragen?
Kontaktieren Sie uns
Sie habe noch weitere Fragen? Senden Sie uns gerne eine E-Mail oder rufen Sie uns an:
LPH 1-9
Kommune
Wiesloch
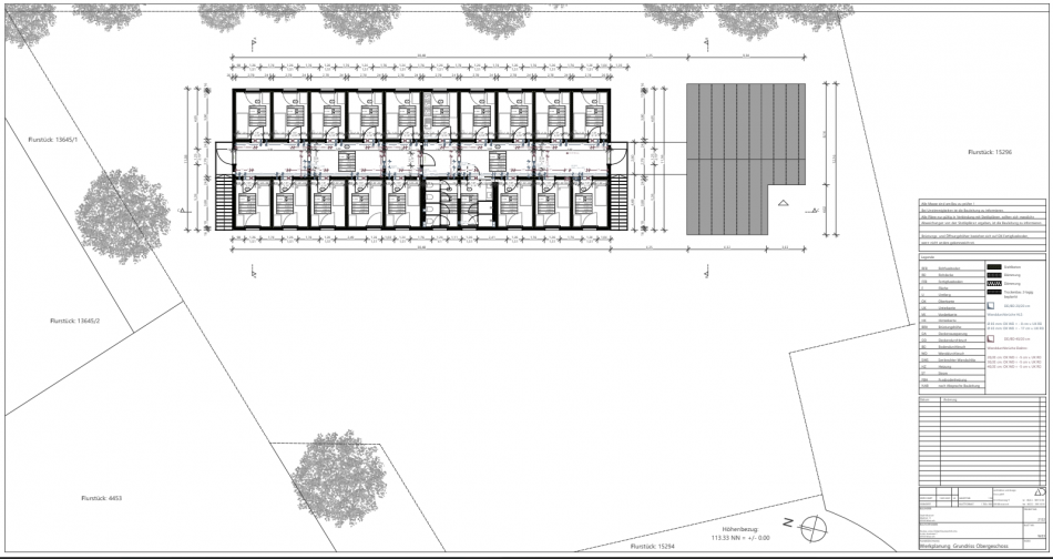
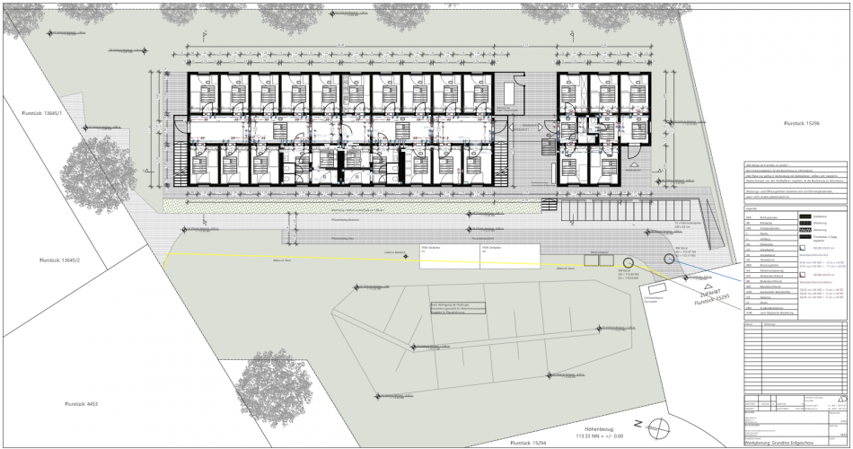
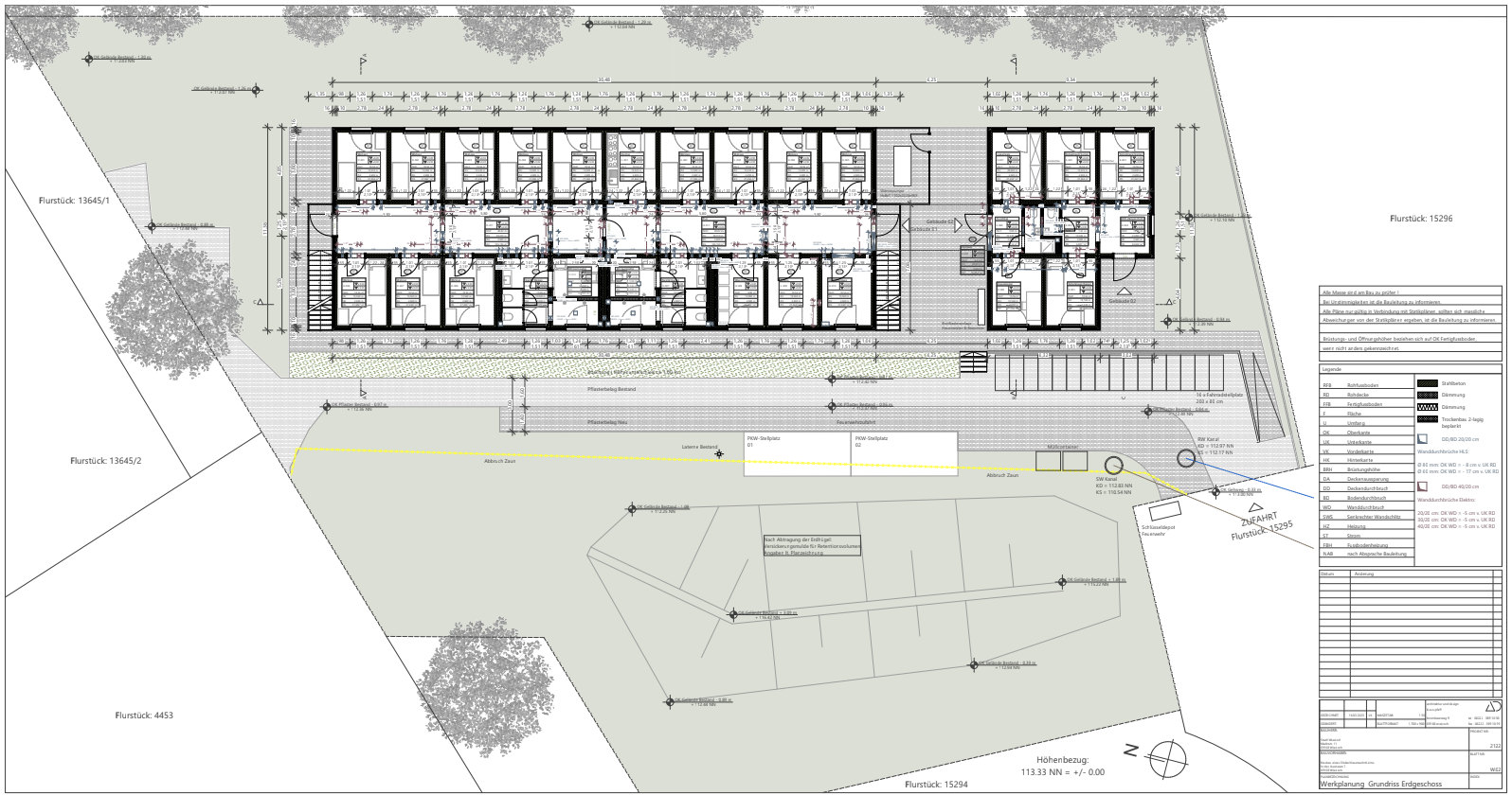
ca. 791 QM
Mitte Juni 23 – vrsl. Anfang März 24
Dieses modern gestaltete Obdachlosenheim in Wiesloch bietet Menschen in Not ein sicheres und würdiges Zuhause. Die Architektur, klar und funktional, unterstreicht den Anspruch, eine Balance zwischen Privatsphäre und Gemeinschaft zu schaffen. Die Anlage, verteilt auf zwei Etagen mit insgesamt ca. 791 QM Bruttogrundfläche, wurde so konzipiert, dass sie den Bewohnern sowohl Rückzugsmöglichkeiten als auch Gemeinschaftsbereiche bietet. Das Zusammenspiel von Grünflächen und modernen Baukörpern sorgt für eine angenehme Atmosphäre, in der sich die Bewohner wohlfühlen können. Mit einer Bauzeit von Mitte Juni 2023 bis voraussichtlich Anfang März 2024 stellt dieses Projekt einen wichtigen Beitrag zur sozialen Infrastruktur von Wiesloch dar.
https://audgmbh.de/wp-content/uploads/2023/11/AD-Obdachlosenwohnheim-Website.mp4







