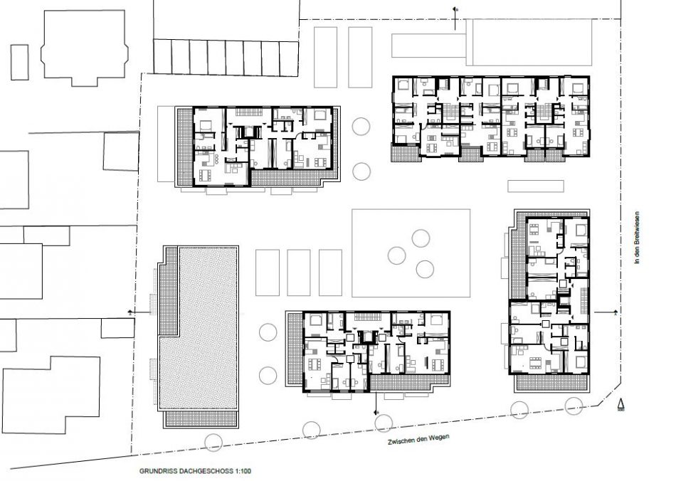
Wohnanlage Zwischen den Wegen

Neubau
  • Planung:
    Architektur LPH 1-5
  • Auftraggeber:
    Privater Bauherr
  • Bauort:
    Zwischen den Wegen, Wiesloch
  • Bruttogrundfläche:
    12.293 QM
  • Bauzeit:
    ab 06/2020

In Wiesloch entsteht eine umfassende Wohnanlage mit 68 Wohneinheiten und einer integrierten Tiefgarage, die einen Teil des dringend benötigten Wohnraums in der Region bereitstellt.

Fünf Mehrfamilienhäuser, geprägt von einer ansprechenden und zugleich wirtschaftlichen Architektur, formen ein neues Wohnquartier nur einen Steinwurf vom Wieslocher Zentrum entfernt. Im Innenbereich des Quartiers wird ein großzügiger, vollständig autofreier Spielplatz realisiert, der eine hohe Aufenthaltsqualität für alle Bewohner sicherstellt.

Das Projekt zeichnet sich durch Nachhaltigkeit aus und ist mit einer fortschrittlichen Pelletheizung sowie energieeffizienter Gebäudetechnik ausgestattet, was es zu einem zukunftsweisenden Vorhaben in der Region macht.

Projekte in Zusammenarbeit mit architektur und design klaus pfaff GBR (Urheberrechte bei der GbR).

Fragen?

Kontaktieren Sie uns

Sie habe noch weitere Fragen? Senden Sie uns gerne eine E-Mail oder rufen Sie uns an:

info@audgmbh.de     |    06222 3891050